Vente appartement, maison

Retrouvez nos biens immobiliers à vendre à Les lilas et aux alentours. Aura vous accompagne dans votre projet immobilier avec des biens sélectionnés.

Consommation d'énergie primaire (en kWh par m² et par an)


2 annonces en ligne à 0, au

Créer une alerte

BAGNOLET

Ref. 5475

D

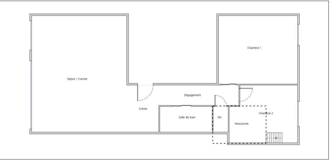
Loft 3 Pièce(s) de 70m2 - À Bagnolet, à la limite des Lilas, à seulement 10 minutes du métro Mairie des Lilas, découvrez ce magnifique loft, lumineux et entièrement aménagé, situé dans un quartier en plein essor. Aura Immobili...

Voir le détail du bien

398 000 €

BAGNOLET

Ref. 5454

E

Loft 3 Pièce(s) de 54m2 - Duplex 3 pièces – 54 m² – Exclusivité Exclusivité Aura Immobilier Situé au 224 rue de Noisy-le-Sec à Bagnolet, cet appartement en duplex de 59 m², aux 1er et 2e étages, séduira par sa configurat...

Voir le détail du bien

335 000 €

En poursuivant votre navigation sur ce site, vous acceptez l'utilisation de cookies afin de vous proposer des services adaptés à votre profil. En savoir plus